15:41, 18 Червня 2018

Проект нового торгово-офісного центру поблизу готелю «Noble» у Луцьку розробив колишній директор історико-культурного заповідника. ФОТО

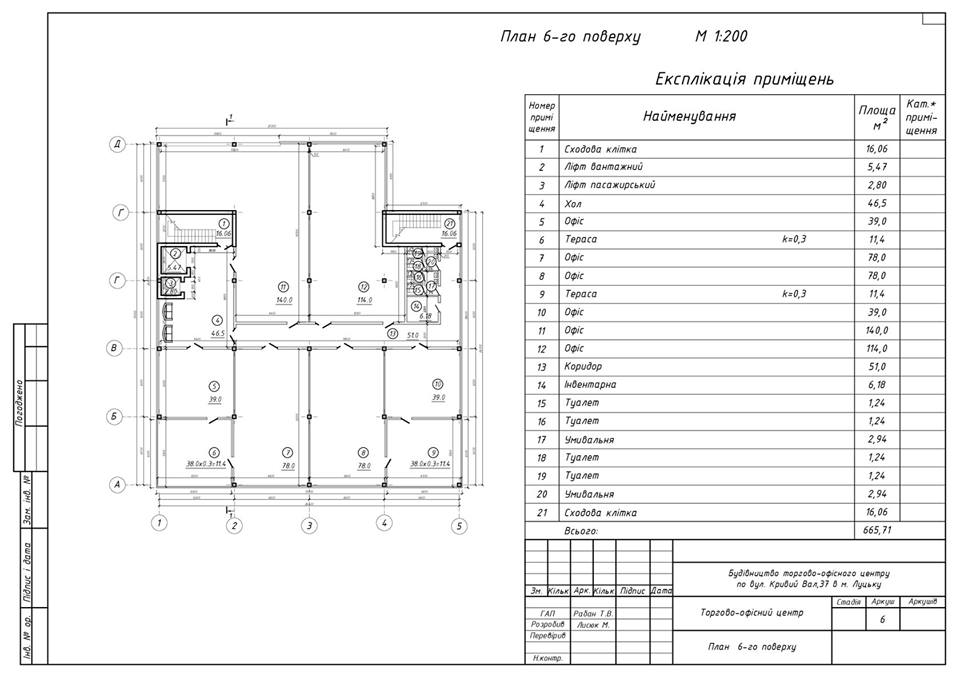
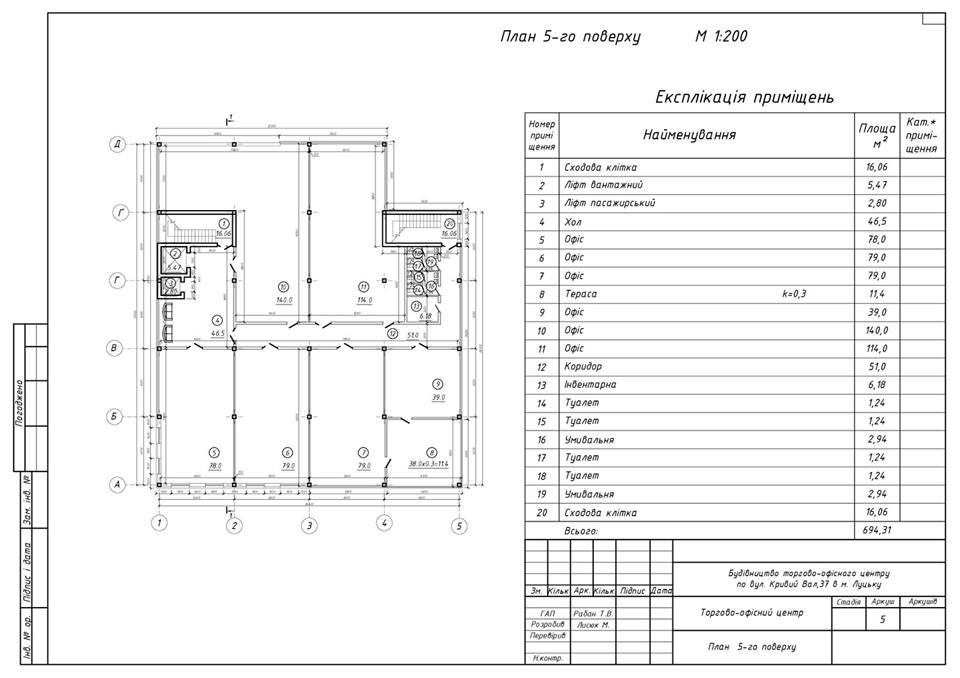
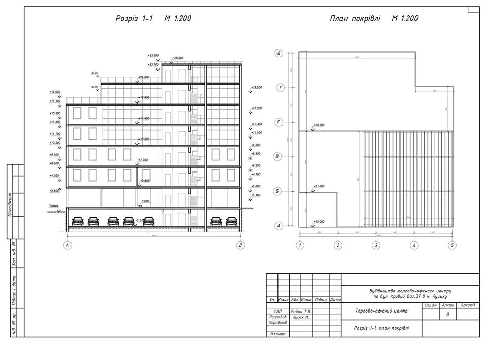
Який вигляд може мати торгово-офісний центр на вулиці Кривий Вал, 37, можна побачити у проекті Тараса Рабана, колишнього директора Державного історико-культурного заповідника у Луцьку, батька депутата Луцької міськради Микити Рабана.

Проект будівництва торгово-офісного центру, розроблений ведучим архітектором Тарасом Рабаном, наведений у переліку проектів робіт Всеукраїнського конкурсу архітектури та урбаністики.

У короткому описі проекту вказано, що вулиця Лесі Українки, Кривий Вал (перетин вулиць) є одними із основних історичних, центральних вулиць Луцька. Тут збережено чимало будинків різних епох та стилів. Розташовані пам’ятки архітектури ХІХ-ХХ століть, будівлі у стилі модерн, конструктивізм, еклектичні будівлі з ознаками класицизму, так званий цегляний стиль. Характер простору та формосприйняття цієї території формують бачення проектної будівлі. Реалізувати проект будівництва шестиповерхового торгово-офісного центру планують протягом 2018-2020 років.

Депутати міськради розглядатимуть проект рішення про розробку проекту детального плану території, у якому врахована зміна цільового призначення ділянки, на якій планують побудувати цей торгово-офісний центр.

 

 

 

 

 

 

 

Повідомити про помилку

Текст, який буде надіслано нашим редакторам: